인 얼스 커피(현대백화점 미아점)
위치 : 서울특별시 도봉구 미아동
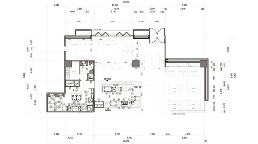
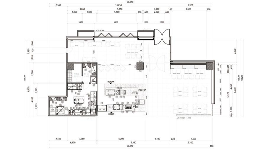
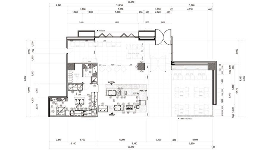
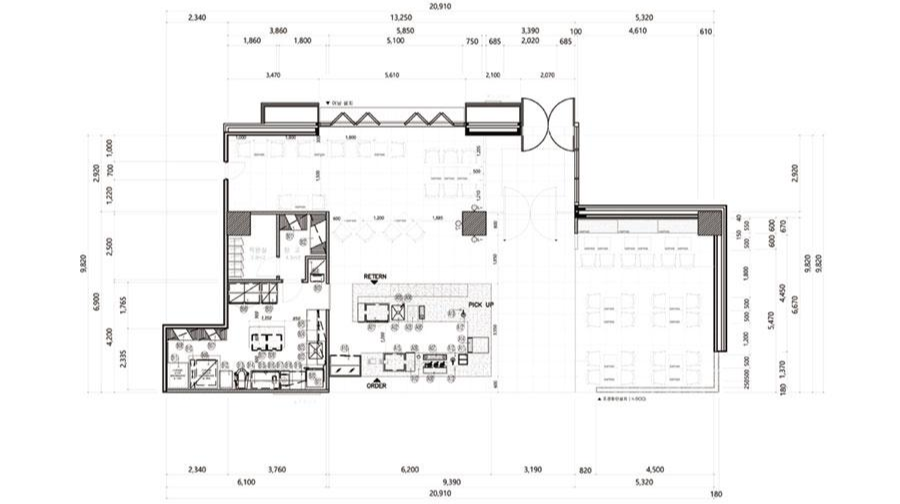
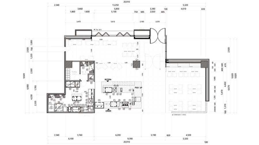
면적 : 160㎡(약45평)
설계 및 시공 : 노태린 앤 어소시에이츠
천장마감 : 도장
벽마감 : 테라코 도장, vp도장
바닥마감 : 세라믹 타일
사진 : 송기면(인디포스)
완공년도 : 2020
커피와 예술을 접목한 공간의 품위
맛 좋은 스페셜티 커피로 정평이 난 카페 ‘인 얼스 커피(In Earth Coffee)’가 이번에 현대백화점 미아점 2층에 입점하며 새로운 공간으로 변신을 시도했다. 지난 2010년 부산 송정에 처음 오픈한 카페 ‘인 얼스 커피(In Earth Coffee)’는 “커피 맛이 남다르다”라며 입소문을 타고 부산, 울산, 성남, 경남, 서울 등지에 계속해서 문을 열었다. 특히 5성급 호텔 이상의 몇몇 쉐프들까지 인정하며 이미 여러 호텔에도 입점된 상태다. 맛 좋은 베이커리와 커피로 꾸준히 사랑받고 있는 카페 ‘인 얼스 커피(In Earth Coffee)’는 현대백화점에서만 부산, 판교에 이어서 올해 세 번째로 미아점에 문을 열었다. 이번 카페의 설계 및 시공을 맡은 노태린 앤 어소시에이츠의 노태린 대표는 “현대백화점 미아점 후문 2층은 아파트에서 백화점으로 바로 들어오는 입구이자 테라스 공간으로 넓게 조성되었다”라며, “카페 ‘인 얼스 커피(In Earth Coffee)’는 폴딩도어를 통해 테라스와 연결되었으며, 백화점 바로 앞 아파트가 완공되면 유동인구가 더욱 크게 늘 것으로 기대를 모은다”라고 전했다. 그만큼 위치적으로 보나 시설 면에서도 최적화된 공간이라 할 수 있다.
이번 프로젝트는 레스토랑 메르씨엘 및 아트 프로젝트 CARIN의 박현진 대표가 총기획하고, 노태린 앤 어소시에이츠가 공간디자인 설계, 시공을 맡았다. 또한 플랜트 디자인에 조셉 플라워를 선정, 카페의 전문성과 백화점의 품위가 잘 어우러지도록 공간 컬러 및 자재 선택에 세심한 노력을 기울인 점이 돋보인다. 아울러 젊고 톡톡 튀는 최은영 작가의 작품이 공간과 집기류에 적용되면서 백화점 내에서 아트인 커피가 발현될 수 있도록 노력한 흔적을 엿볼 수 있다. 공간의 컬러감은 블랙과 그레이, 베이지 컬러의 기본 베이스 위에 무늬목으로 포인트를 주었다. 중앙의 오픈 다이닝바 공간은 전체 무늬목으로 부드럽게 적용했다. 카운터와 다이닝바가 하나로 연결된 가구 상판은 화이트 컬러를 입혀 온화한 분위기가 느껴진다. 천장은 라운드 처리된 네모난 간접 조명 위로 또 하나의 사각 무늬목 판을 덧대어 입체감을 더해주고 있다. 마치 줄에 매달린 채 달려있는 조명 연출은 오픈 다이닝 존에만 초점을 맞추며 전체 공간의 중심이 되고 있다. 그만큼 공간의 키 포인트로 백화점 내와 잘 어우러지도록 디자인된 점을 알 수 있다.
카페 왼쪽 공간은 다른 공간에 비해 유달리 어둡다. 이는 백화점 측의 요구사항으로 공간 내의 차별화를 둠으로써 이벤트 홀처럼 다양하게 활용할 수 있게 했다. 또한 시각적으로 오픈 다이닝바와 전혀 다른 반전의 묘미로 중후한 멋을 드러낸다. 이곳은 어두운 테라조 분체도장 마감을 적용했지만 고급스러운 질감으로 품격이 더해진다. 더욱이 천정의 라인 조명과 좌석 등받이 뒤로 흐르는 간접 조명이 은은하게 퍼져 공기마저 온화하다. 특히 최은영 작가의 밝고 화사한 그림의 색채감이 포인트가 되어 공간 속 활기를 띠고 있다.
오픈 다이닝바 뒤쪽으로는 심플하고 모던한 분위기로 디자인의 힘을 최대한 뺀 채 편안함에 초점을 맞췄다. 이로 인해 백화점 내 컬러 및 분위기와 잘 어우러져 훨씬 여유롭게 다가왔다. 특히 원목 테이블과 의자 역시 심플하고 안락하게 디자인되어 내부 공간 분위기와 잘 맞아떨어졌다. 조명은 블랙으로 통일감을 주었으며 공간에 키 포인트가 되어 최은영 작가의 그림에 신선함을 더해준다. 카페에 들어오는 입구의 양옆은 전체 유리로 적용되어 외부에서 흐르는 빛의 연출로 내부가 한층 풍성해졌다.
테라스는 폴딩도어를 통해 개방감과 접근성을 동시에 만족시켰다. 테라스의 석재 바닥은 내부의 타일 바닥 마감과 어우러져 자연스러운 조화를 이루고 있다. 그만큼 곳곳에 스며든 외부의 물성이 내부 공간을 흡수하며 하나로 연결된 점을 알 수 있다. 노태린 대표는 “병원이나 상업 공간 인테리어를 오랫동안 진행하다 보니 좌석이나 동선, VIEW 포인트가 자연스럽게 파악되었다”라면서 “사람들의 행동 변화 및 여성들의 심리 변화 양상은 공간 설계에 있어 매우 중요한 부분이다. 카페 ‘인 얼스 커피(In Earth Coffee)’는 커피가 주는 설레임과 기대감을 공간 안에 최대한 녹여내어 고객들이 쉽고 편안하게 다가올 수 있도록 디자인했다”라고 설명했다.















