제주한국병원 응급의료센터
위치: 제주 제주시 서광로 193
면적: 600평
설계 및 시공: 노태린앤어소시에이츠
사진: 노태린앤어소시에이츠
완공년도: 2018
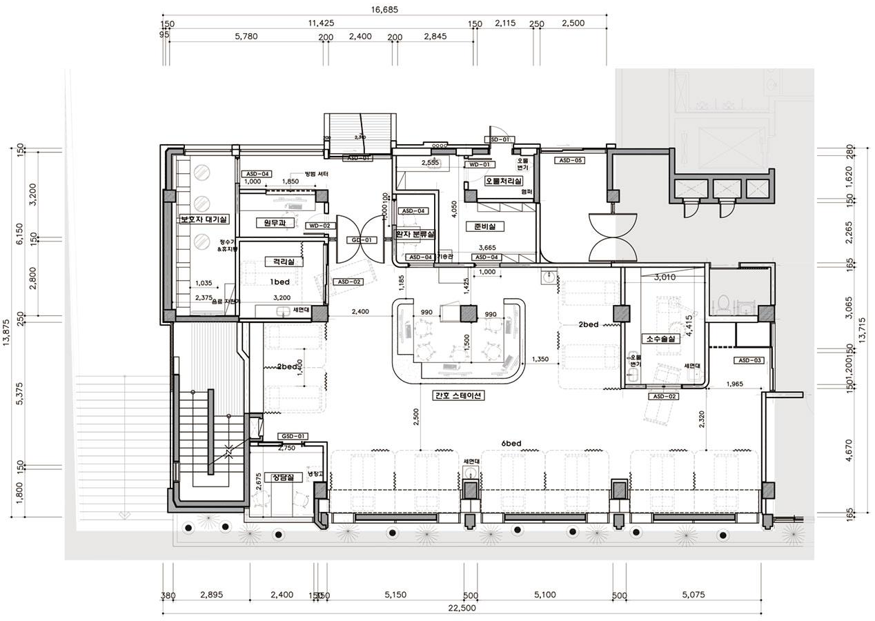
초를 다투며 생명을 다루는 응급실(Emergency)의 외관 디자인의 가장 중요점은 식별성입니다. 가장 직관적인 디자인을 통해 누구나 응급실을 알아볼 수 있는 디자인을 해야 합니다. 응급실의 메인 컬러는 세계적으로 레드 컬러로 가장 직관적입니다. 제주한국병원의 응급의료센터의 파사드 디자인은 각지고 직선적인 요소로 구성되어 있습니다.
응급실은 생명이 위급한 환자를 실시간으로 다루고 있기때문에 다소 긴장감 있고 직관적으로 설계하였습니다. 내부는 전체적인 우드톤에 옐로우, 블루 등을 포인트 컬러로 마감되었습니다. 편안하며 활기가 느껴지는 공간입니다. 환자 침대의 천장은 활기를 띄는 옐로우컬러에 간접등을 사용하여 위급한 환자로 하여금 활기를 느끼도록 디자인되었습니다. 또한 인포메이션, 바닥패턴 등을 곡선 요소를 주어 숨 막힐 수 있는 응급실 분위기를 부드럽게 완화될 수 있도록 했습니다.












