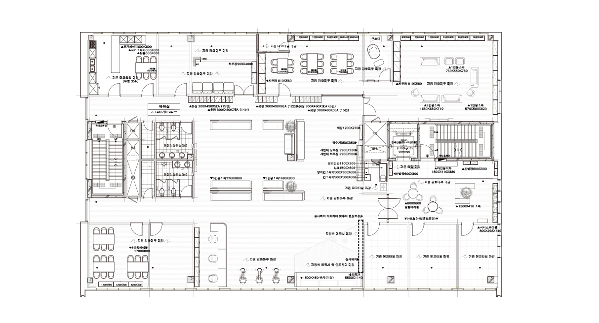
인천 참사랑병원 햇살 데이케어센터
위치: 인천광역시 서구 가정1동
면적: 678.248㎡(205.17평)
설계 및 시공: 노태린앤어소시에이츠
천장마감: 흡음텍스
벽마감: 방염벽지, 친환경 페인트
바닥마감: 강화온돌마루
사진: 송기면(인디포스)
완공년도: 2020
독일의 한 치매 마을에는 ‘버스가 오지 않는 버스정류장’이 있다. 이 요양원의 치료사는 알츠하이머(치매)를 앓고 있는 노인들 이 시설을 뛰쳐나와 길을 잃어버리지 않도록 ‘가짜 버스정류장’을 세웠다고 전했다. 치매 노인 대다수는 집에 가고 싶고, 가족도 보고 싶은 마음에 버스정류장에 왔다가, 여기에 왜 와 있는지 어느 순간 잊어버리게 된다. 이는 ‘배회’라는 증상으로, 사람과 장소에 대한 개념을 잊어버린 채 항상 과거의 기억 속에 머물러 있음을 증명한다.
인천참사랑병원 부설 ‘햇살 데이케어센터’ 안에는 ‘버스가 오지 않는 버스정류장’이 마련되어 있다. 노태린앤어소시에이츠의 노태린 대표는 정류장이 결국 “마음의 안정을 위한 휴식처”가 될 것으로 판단, 곳곳에 치매 노인들이 ‘배회’하다가 쉴 수 있도록 공간을 디자인했다.
내부에서 맨 먼저 눈에 띄는 곳이 바로 왼쪽에 위치한 버스 정류장이다. 상단에 마련된 버스정류장 네임과 하단에 놓인 원목 벤치가 이곳이 ‘버스가 오지 않는 버스정류장’임을 미루어 짐작게 한다. 특히 푸른 잔디밭이 프린트된 바닥과 평화로운 시골 마을길이 그려진 벽면 디자인이 안정된 분위기를 조성한다. 벽면에는 걷기 불편한 치매 노인들을 위해 안전봉이 설치되었다.
공간에 사용된 색감 역시 화이트를 기본 베이스로, 밝고 경쾌한 컬러 포인트가 눈에 띈다. 내부 홀은 자연을 모티브로 싱그러운 그린과 브라운 톤으로 편안함을 추구했다. 또한 중앙은 따뜻한 색감으로 치유될 수 있도록 짙은 카키 톤의 월 데코와 그레이 컬러가 적용되었다. 기성 제품으로 이루어진 소파의 경우 블랙과 브라운의 어두운 컬러감 속에 화사한 식물 패턴이 그려진 쿠션을 곳곳에 설치해 반전의 묘미를 느끼게 했다.
홀 뒤편에 설치된 사물함은 기분을 차분하게 이끄는 옅은 그린과 핑크, 짙은 블루톤을 선택한 점을 알 수 있다. 세면대 벽면은 밝은 옐로우 컬러로 씻는 동안 화사한 기분이 들게 했다. 또한 사무실과 화장실로 가는 복도는 파스텔 계열의 여름 하늘을 닮은 스카이 블루를 입혀 청량한 이미지를 전달했다. 더욱이 복도 끝에는 짙은 레드 컬러의 디자인 체어와 식물로 공간을 풍요롭게 가꿔주었다.
사랑 마당 공간의 경우 치매 노인들이 모여 담소를 나누는 만큼 따뜻한 계열의 오렌지 컬러가 벽면을 장식했다. 또한 레드와 블랙 컬러의 의자 배치로 공간에 신선한 에너지와 활력을 불어넣었다. 뒤편 수납장은 옅은 그린과 오렌지, 바이올렛 톤으로 차분함과 활기찬 에너지를 동시에 반영시킨 점이 돋보인다.
입구는 라운딩으로 디자인된 우물 천정이 전체 공간을 부드럽게 감싸 안은 듯한 이미지를 전달한다. 특히 데이케어센터의 입구인 만큼 전체 원목과 식물로 편안함을 추구하고 있는 점을 알 수 있다. 또한 소파 대신 그린 컬러의 데이베드를 식물 사이에 설치했으며, 벨벳 라운드 의자와 원목의 원형 테이블로 전체 공간에 부드러운 이미지를 강조했다.
노태린 대표는 “햇살 데이케어센터는 온전한 쉼과 휴식, 힐링의 장소가 되도록 설계했다. 특히 기존 공간에서 컬러와 디자인만 살짝 변형 시켜 최적의 헬스케어 공간을 만들어 냈다”라며 “이렇게 진행할 수 있었던 것은 치매 환자들과 이곳 관계자들의 이야기를 적극적으로 들어보고 프로그램을 진행했기 때문이다. 그만큼 사용자 중심, 사람 중심으로 디자인되어야 한다. 다시 말해, 환자나 치매 노인들에게 진정한 존엄의 가치를 전달하는 곳이 진정한 헬스케어 공간”이라고 강조했다.
- 이하우징 2020 08월호 기사내용 발췌





















