Works
Media
Info
Works
- Hospital
- Living
- Public/Office
- Design Consulting
Media
Info
상담
노태린앤어소시에이츠
컨텐츠 검색
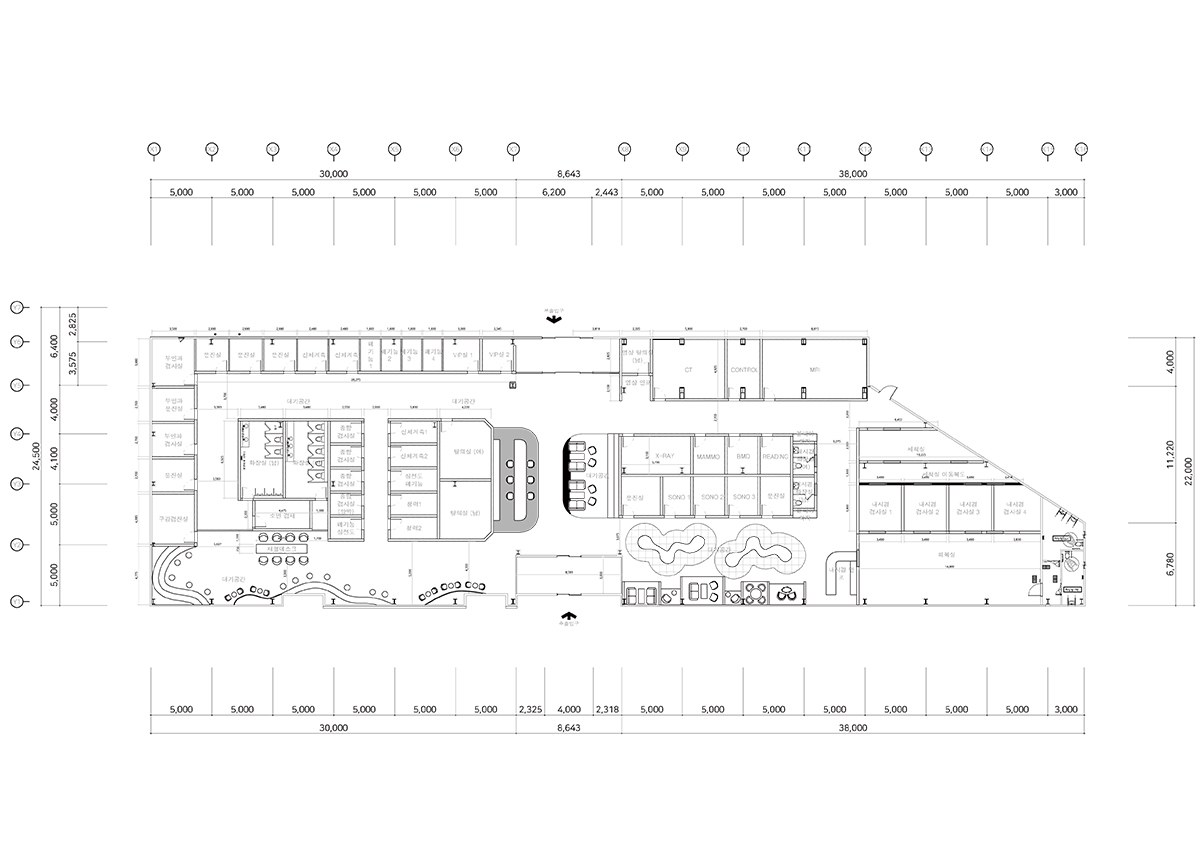
다보스 건강검진센터 인테리어
위치: 경기도 용인시 처인구 백옥대로 1069
현장면적 : 488.3 ㎡ (450.2PY)
디자인설계 : 노태린앤어소시에이츠
설계년도 : 2023
공유하기
게시글 관리
노태린앤어소시에이츠
관련글
동탄 삼성제일 소아청소년과의원
2023.09.12
동서울호텔 BS클리닉
2023.09.12
강남 세브란스 병원 의사휴게실
2022.08.13
대구 카톨릭대학교병원 요셉관 리모델링
2022.08.13
댓글
0
+ 이전 댓글 더보기
티스토리툴바