Works
Media
Info
Works
- Hospital
- Living
- Public/Office
- Design Consulting
Media
Info
상담
노태린앤어소시에이츠
컨텐츠 검색
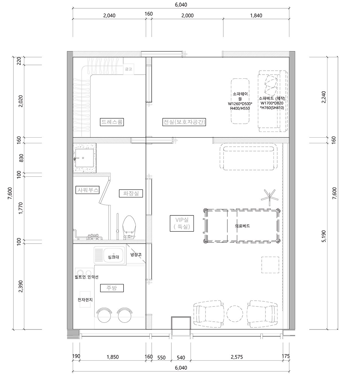
보바스 2F 특실
위치 : 경기도 성남시 분당구 대왕판교로 155-7
현장면적 : 약 46.2㎡ (13.9PY)
디자인설계 및 시공 : 노태린앤어소시에이츠
공유하기
게시글 관리
노태린앤어소시에이츠
관련글
서북병원
2023.09.13
보바스 로비층 화장실
2023.09.12
동탄 삼성제일 소아청소년과의원
2023.09.12
동서울호텔 BS클리닉
2023.09.12
댓글
0
+ 이전 댓글 더보기
티스토리툴바