Works
Media
Info
Works
- Hospital
- Living
- Public/Office
- Design Consulting
Media
Info
상담
노태린앤어소시에이츠
컨텐츠 검색
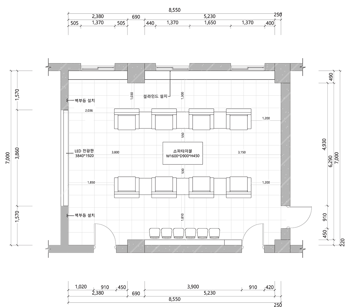
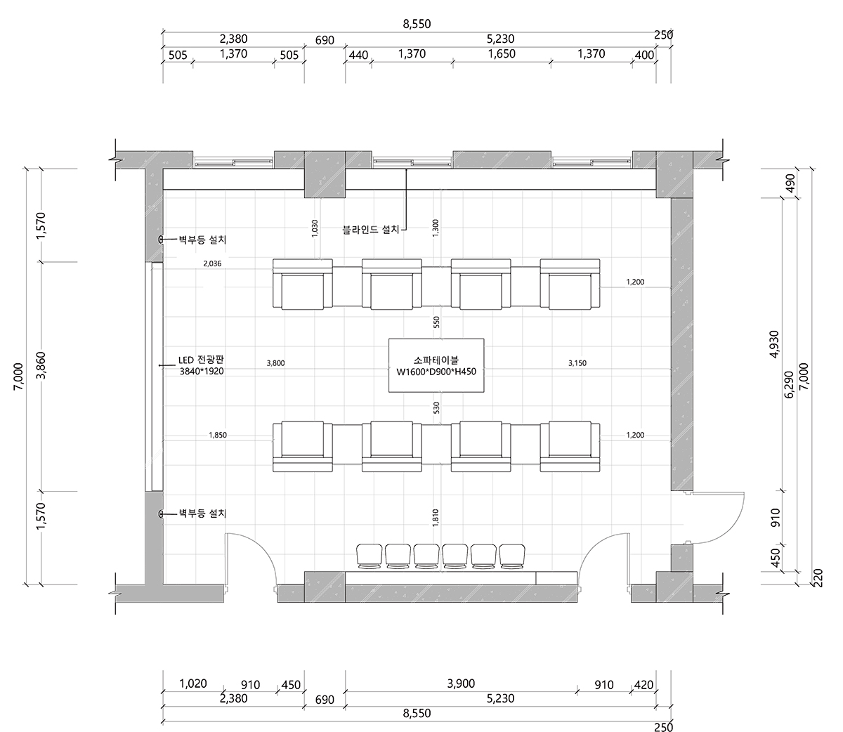
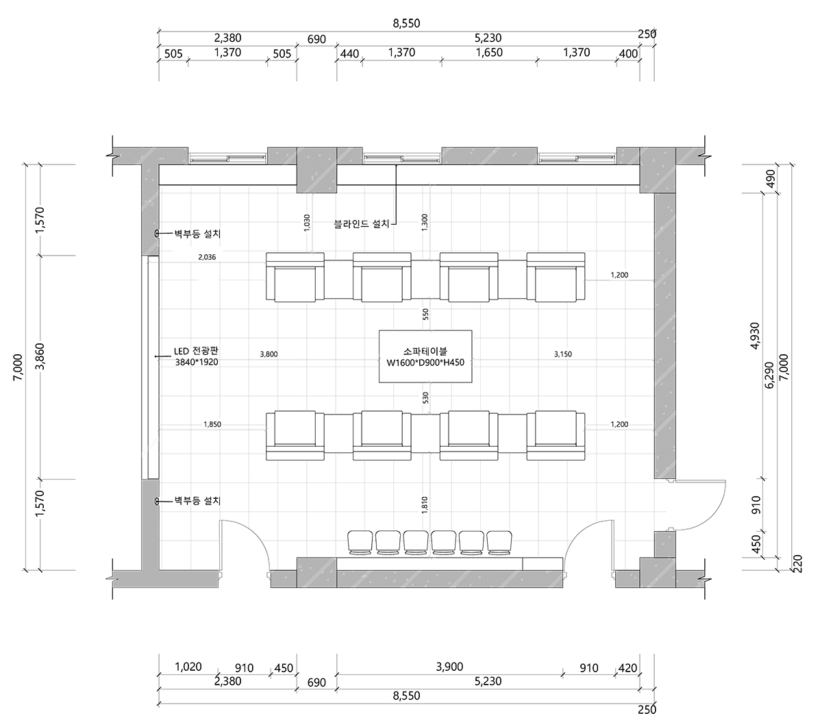
영남대학교 접견실
위치: 경상북도 경산시 대학로 280
발주처: 영남대학교
현장면적: 약59.5
㎡ (18PY)
디자인설계: 노태린앤어소시에이츠
시공: 이모트원
완공: 2023
공유하기
게시글 관리
노태린앤어소시에이츠
관련글
계명대학교 간호대 역사관
2023.09.12
댓글
0
+ 이전 댓글 더보기
티스토리툴바