제주한국병원 중환자센터
위치: 제주 제주시 서광로 193
면적: 600평
설계 및 시공: 노태린앤어소시에이츠
사진: 노태린앤어소시에이츠
완공년도: 2018
제주한국병원 중환자실 완성 (Jeju Hankook hospital intensive care unit Complete)
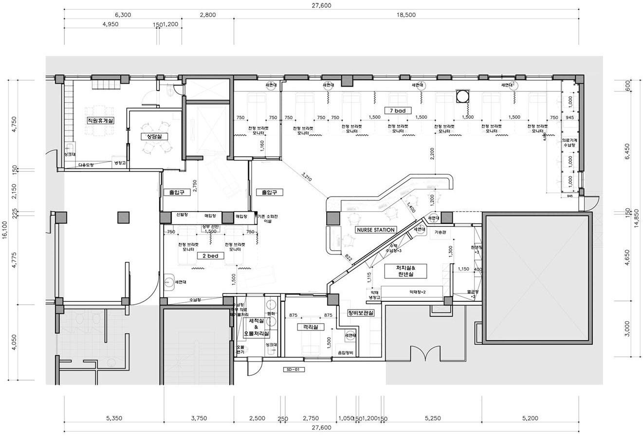
중환자실(intensive care unit)은 말 그대로 상태가 중한 환자가 머무르는 곳입니다. 그래서 병원 내 어떤 공간보다 환자중심 공간이어야 합니다. 의료진이 환자의 상태를 바로 확인하고 피드백이 가능한 기능이 요구되기 때문에 베드와 스테이션의 배치, 등 동선계획이 제대로 구성되어야 합니다. 제주한국병원의 중환자실은 오렌지, 그린, 블루 등 밝고 활기찬 색을 배색했습니다. 상태가 중한 환자는 몸은 물론 심적으로도 많이 지쳐있기 때문에 밝고 활기찬 분위기를 연출하였습니다. 또한 베드에 누워있는 시간이 길기 때문에 실링 디자인에 큰 주안점을 주었습니다. 간접조명에 그치지 않고 밤하늘의 별자리 디자인을 줌으로써 마음의 평안을 얻을 수 있도록 디자인했습니다. 약제실은 약 제조에 오류를 범하지 않도록 가능한 차분하고 정리된 가구로 제작되었습니다.










