더탑재활의학과의원
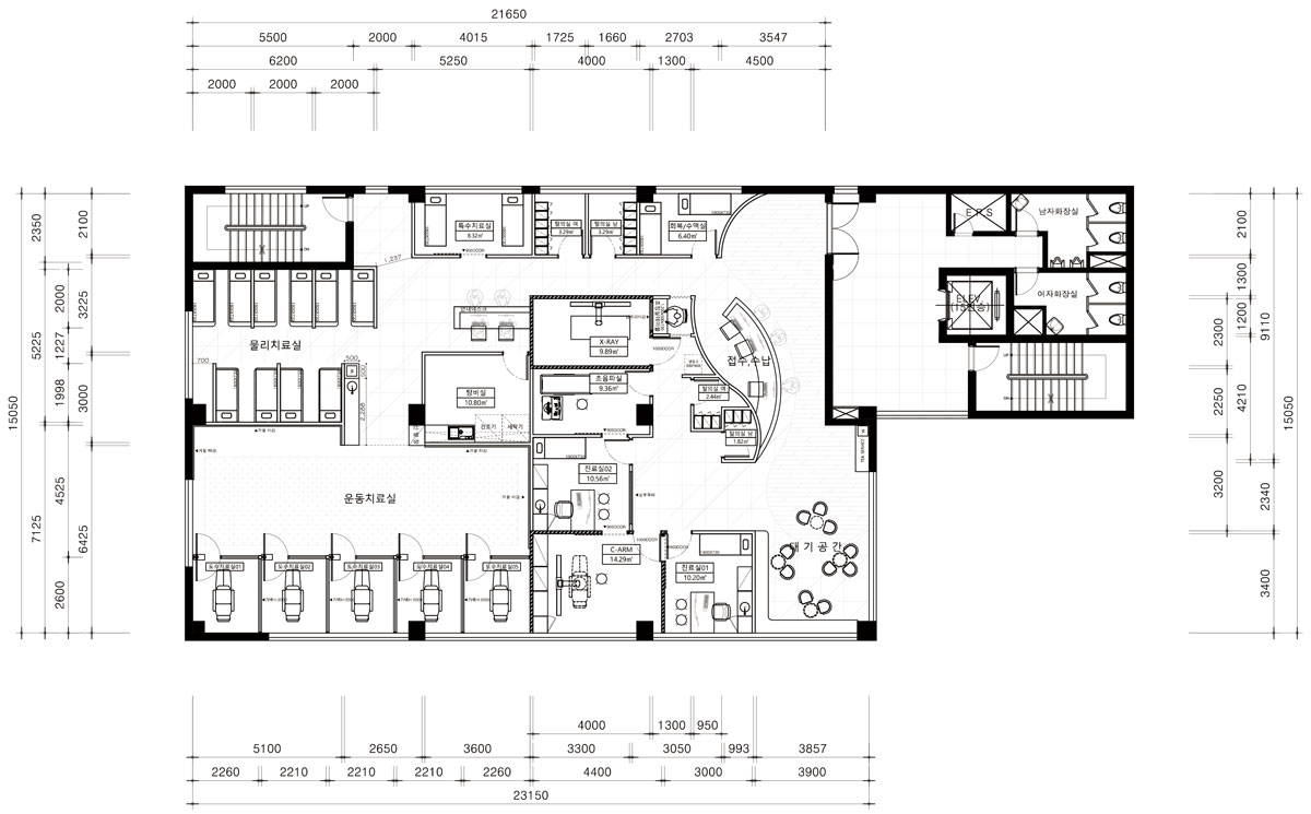
위치 : 서울 강남구 개포동 1239-17 3F
면적 : 97평
설계 및 시공 : 노태린앤어소시에이츠
업무범위 : 인테리어 디자인
완공년도 : 2020
디자인 컨셉 : Minimal White & Wood
직원이 행복하고 환자가 따뜻한 분위기를 맞을 수 있도록 병원에 찾은 모든 재활환자들이 편안하고 안락한 느낌을 주기 위해 칼라와 재질은 화이트와 우드로 미니멀한 컨셉을 잡았다. 특히 화이트칼라를 기본 베이스 색상으로, 우드는 포인트로 배치하여 전체적으로 내추럴하며 자연스러운 느낌을 연출한다.
병원 공간은 진료가 우선일까? 아니면 환자가 우선일까? 만약 우리가 공간을 디자인한다면, 가장 먼저 어디에 중점을 두어야 할지, 우선순위를 정하는 것부터 시작해야 한다. 특히나 상업공간은 이 부분을 절대 간과해서는 안 된다. 병원은 익히 알다시피 상업공간이다. 의사들이 흔히 착각하기 쉬운 부분이 바로 우선순위다. 대 부분의 의사가 병원 공간을 디자이너에게 의뢰할 때, 가장 먼저 생각하는 부분은 일반적이고 조직적인 시스템이다. 이는 기존의 체계적인 운영 시스템으로 환자들에게 최상의 진료를 제공하고, 치료해주는 것을 목적으로 한다. 더욱이 이제 시작하는 2, 30대 개원의는 이러한 시스템적인 병원 환경만을 경험했기에 다른 부분까지 고려해 보지 못한다. 물론 이 부분이 잘못되었다는 것은 아니다. 하지만 무엇이 우선인지 심도 있게 고민해 봐야 할 필요성이 있다. 전자는 절대적으로 진료가 우선인 공간이다.
하지만 요즘 병원 트렌드는 환자 중심으로 바뀌고 있다.
병원은 앞서 말했듯 상업공간이기에 환자들이 자주오고(?), 와야 하는 공간이다. 많은 환자를 오게 하려면, 가장 먼저 바뀌어야 할 부분은 시스템이 아니라 환경이다. 노태린 앤 어소시에이츠의 노태린 대표는 “요즘 동네 병원은 차 한 잔 마실 수 있는 따뜻하고 편안한 공간으로 변화되고 있다. 병원 대기실 공간도 이웃집처럼 잠깐 쉬다가 갈 수 있는 쉼터의 역할을 하고 있다. 현재 트렌드는 삶의 템포가 느슨해지고 느려지는 것을 추구한다. 그래서 병원 역시 숲 속에 온 듯 편안한 휴식과 안정, 치료보다 치유가 우선시되어야 한다”라고 강조했다.
더탑재활의학과 의원은 전적으로 환자 중심의 공간으로 디자인됐다. 특히 병원 위치상 양재 시민의 숲이 있어 대기 공간에서는 큰 창으로 확 트인 전망을 볼 수 있다. 창가에는 둥근 테이블과 안락한 의자를 놓아 카페 같은 분위기가 연출됐다. 대기 공간에서 느껴지는 분위기는 편안함과 온화함이다. 바닥은 원목의 컬러감으로 띠를 두르고 벽면을 따라 제작한 붙박이 좌석 겸 소파 역시 브라운 계열의 짙은 컬러가 적용되었다. 또 한 벽지는 짙은 그린을 선택해 마치 나무 아래, 안락한 쉼이 되게 한 점이 돋보인다. 중앙에는 블루, 그린, 오렌지 톤의 스툴을 놓아 알록달록한 분위기마저 더해준다.
그만큼 프로젝트는 각기 다른 컬러로 포인트를 준 점이 돋보인다. 특히 병원 위치상 양재 시민의 숲이 있어 대기 공간에서는 큰 창으로 확 트인 전망을 볼 수 있다. 창가에는 둥근 테이블과 안락한 의자를 놓아 카페 같은 분위기가 연출됐다.
대기 공간에서 느껴지는 분위기는 평안함과 온화함이다. 바닥은 원목의 컬러감으로 띠를 두르고 벽면을 따라 제작한 붙박이 좌석 겸 소파 역시 브라운 계열의 짙은 컬러가 적용되었다. 또 한 벽지는 짙은 그린을 선택해 마치 나무 아래, 안락한 쉼이 되게 한 점이 돋보인다. 중앙에는 블루, 그린, 오렌지 톤의 스툴을 놓아 알록달록한 분위기마저 더해준다.
프로젝트는 각기 다른 컬러로 포인트를 주었고, 대기 공간에서는 그린과 바이올렛, 오렌지, 블루, 진료공간에서는 그레이 컬러, 물리치료실은 그린, 운동치료실은 짙은 블루, 남자 탈의실은 바이올렛과 그린, 여자 탈의실은 바이올렛과 핑크, 도수 치료실은 연한 블루 등 컬러만 20여 가지로 다채롭게 적용되었다.
또한 공간마다 크고 작은 창으로 채광을 유입하고 외부의 풍광을 바라보게 했다. 이로 인해 외부에서 들어오는 빛이 벽에 비추면 또 다른 시각적인 분위기가 느껴진다.
노태린 대표는 “환자가 병원을 예약하고 오려면 하루의 절반이라는 시간이 필요하다. 도수치료만 해도 2~3시간이 걸린다. 그만큼 하루의 절반을 병원이라는 공간 속에 보내게 되는 것이다. 하루 삶에 있어 환자들에게 최선의 공간을 만들어 주고 싶었다. 쾌적한 환경에서 오래 머물고 싶은 공간을 만들고자 컬러 스펙트럼을 넓혀주는 데 주력했다”라고 설명했다.
프로젝트에서 또 한 가지 특징은 다양한 액자나 그림, 식물을 곳곳에 배치해 자연의 친밀감을 높인 점이다. 환자들은 곳곳에서 볼 수 있는 자연의 친밀감으로 마음까지 치유되는 경험을 할 수 있다. 노태린 대표는 “헬스 케어 공간에서 빠지지 말아야 할 요소는 빛, 소리, 색, 공기, 이미지(액자나 그림 배치), 자연(식물 배치)이다. 이와 함께 인체공학적인 가구와 최적화된 동선으로 이상적인 헬스 케어 공간을 연출할 수 있다. 특히 위의 요소는 큰 비용을 요구하지 않는다. 비싼 자재가 아닌 벽지와 시트, 기성 소품만으로도 최상의 가성비 인테리어 효과를 낼 수 있다”라고 전했다.




















