인천 참사랑병원 치매가족을 위한 힐링카페
위치 : 인천광역시 서구 가정1동 511-6
면적 :
설계 및 시공 : 노태린앤어소시에이츠
업무범위 : 인테리어 디자인
완공년도 : 2017
공간은 사는 사람의 모습이 그대로 투영된 첫인상과도 같다. 공간 안에 들어서는 순간 다양한 기분과 생각들이 오고 간다. 여러 가지 컬러와 마감재, 향기, 가구의 배치, 각 실의 위치 등 그 다양성들이 한눈에 펼쳐진다. 그 공간을 처음 느껴본 이들은 당시의 기분 상태를 오래도록 유지하게 되며 머릿속에 각인시킨다. 흔히들 정신과 병동에 가면 두려움과 공포심을 느끼게 된다. 더욱이 TV나 다른 매체를 통해 보이는 정신과 병동의 인상은 어둡고 차가웠다. 하지만 인천 도심에 위치한 참사랑병원은 부정적인 모습과는 거리가 먼 편안하고 밝은 분위기가 맴도는 공간이었다. 클라이언트는 처음 병원 밖에 킬리안 심리상담연구소를 계획하면서 다양한 환자들의 심리상태를 이해하는 공간으로 활용되었으면 하는 바람을 드러냈다. 특히 지역의 소통을 기반으로 치매 환자들을 위한 커뮤니티 카페를 만들어 많이 사람들이 드나들 수 있도록 하기 위함이었다. 디자이너는 이를 위해 환자들이 따뜻하고 편안한 분위기 속에서 지역 주민들과 대화할 수 있는 소통의 공간을 만드는 데 주력했다.
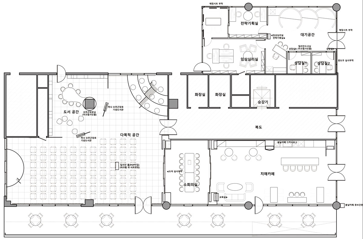
인천참사랑병원 신관 1층은 킬리안 심리상담연구소인 사무실, 킬리안 홀, 교육실로 이루어졌으며, 그 옆에는 치매 복합문화공간인 봄날 카페가 위치해 있다. 디자이너는 외근이 잦은 직원들의 업무 특성상 1층 주차장과 가까운 곳에 사무실을 배치하였고, 접견실 역시 이와 같은 맥락으로 디자인했다. 사무실 안에는 전략기획실과 접견실, 임상심리실, 상담실 A와 B가 들어서 있다. 사무실 입구 왼편에는 킬리안 심리상담연구소의 실명자인 킬리안 수사(Brother Kilian Keaney / ST. John of God Hospital, Ireland)의 명함과 이력이 소개되어 있다. 그곳에는 킬리안 수사가 전하는 대표적인 문구가 적혀 있다. “Treasure every encounter. For every moment is unique. Celebrate each moment. It is the little things that are important. (모든 만남을 소중히 하십시오. 그 만남은 유일무이한 순간이기에 매 순간 축하하십시오. 이 작은 것들이 소중하기에.)” 킬리안 수사는 오래전 광주 성요한 정신병원을 세워 국내 정신보건 분야에 인간적인 인술을 실천했으며, 현재 아일랜드의 더블린에서 지역사회 정신보건을 기반으로 한 재활시설을 운영하고 있다. 클라이언트는 킬리안 수사의 정신을 받들어 킬리안 심리상담연구소를 계획한 것이다.
사무실 내부는 따스한 기운이 감도는 오렌지 컬러가 적절하게 사용되었다. 특히 전체 화이트 컬러를 기반으로 도어와 천장에 오렌지 컬러로 포인트를 주어 공간을 차분하게 이끌었다. 또한 오렌지 컬러를 입힌 천장에 6개의 조명을 불규칙하게 배치해 율동감을 부여했다. 이 공간에서 눈에 띄는 점은 반원으로 디자인된 좌석이다. 디자이너는 심리연구소를 찾는 상담자들이 편하게 대기할 수 있도록 서로의 시선이 차단되도록 연출했다. 이러한 연출로 인해 공간이 훨씬 부드러워졌다. 사무실 안쪽에 위치한 접견실은 그린과 블루 컬러의 바닥 마감이 산뜻하게 연출되어 있다. 오렌지 컬러의 슬라이딩 도어와 조화를 이루며 아늑한 분위기에서 만남을 이어갈 수 있다. 사무실을 벗어나면 넓은 광장에 온 듯한 착각을 불러일으키는 킬리한 홀이 위치해 있다.
-출처 : 이하우징 2017 07월호








