골드만 비뇨의학과(동탄점)
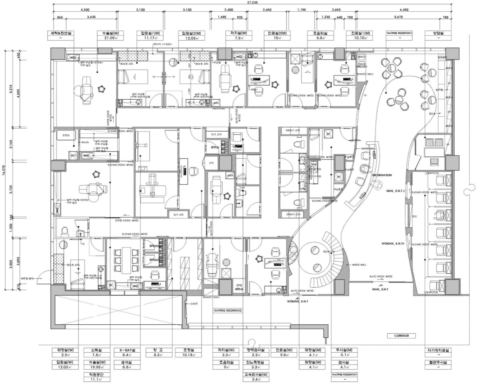
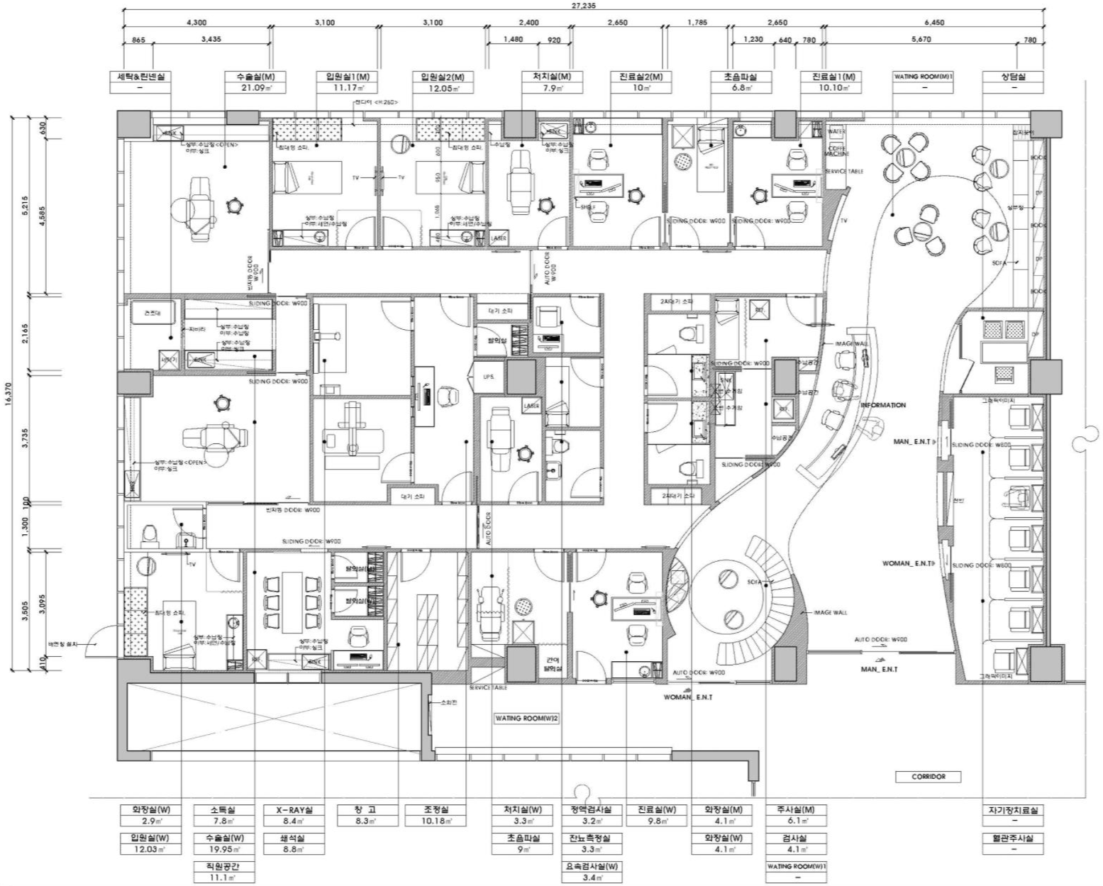
위치 : 경기도 화성시 동탄대로, 489 KR 우성KTX타워 9층
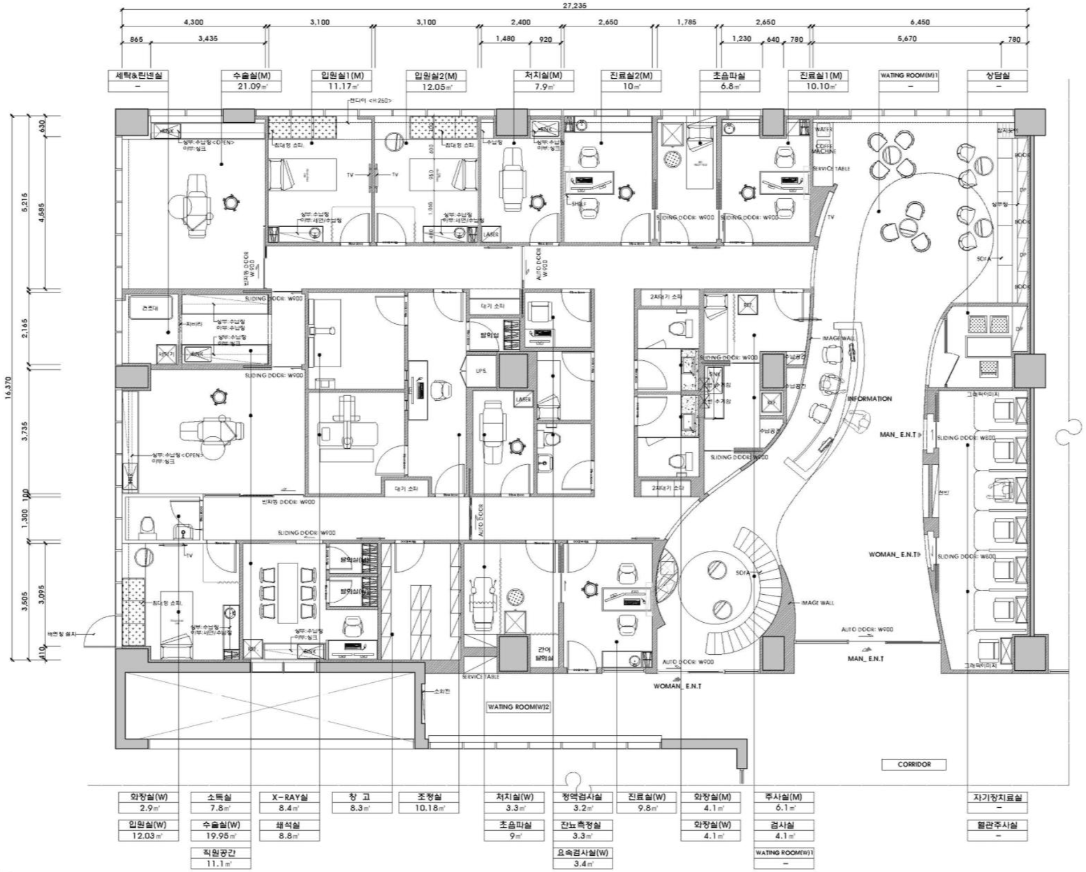
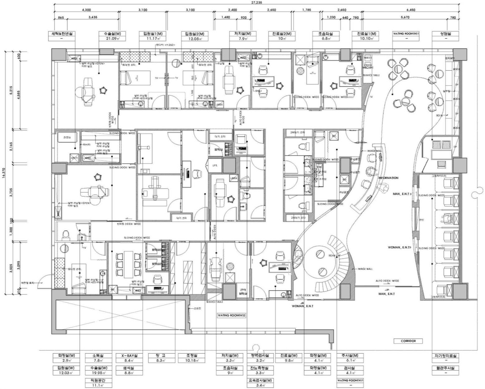
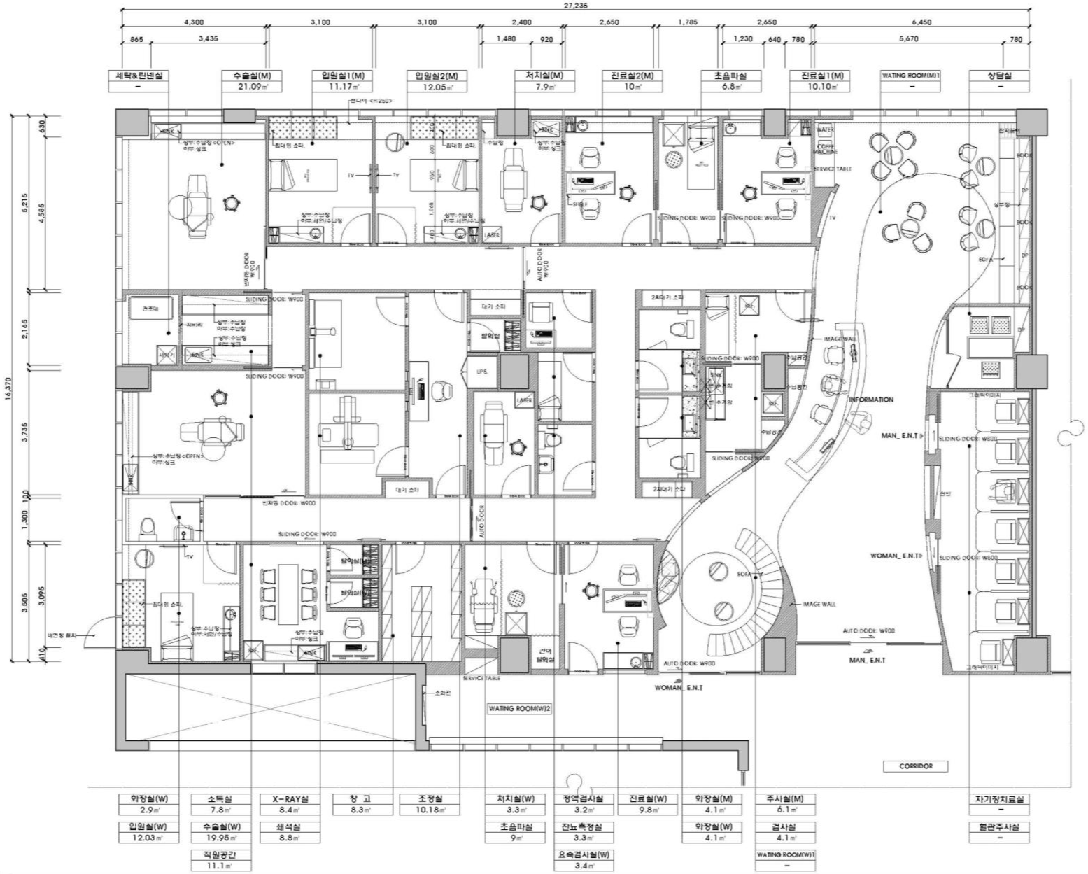
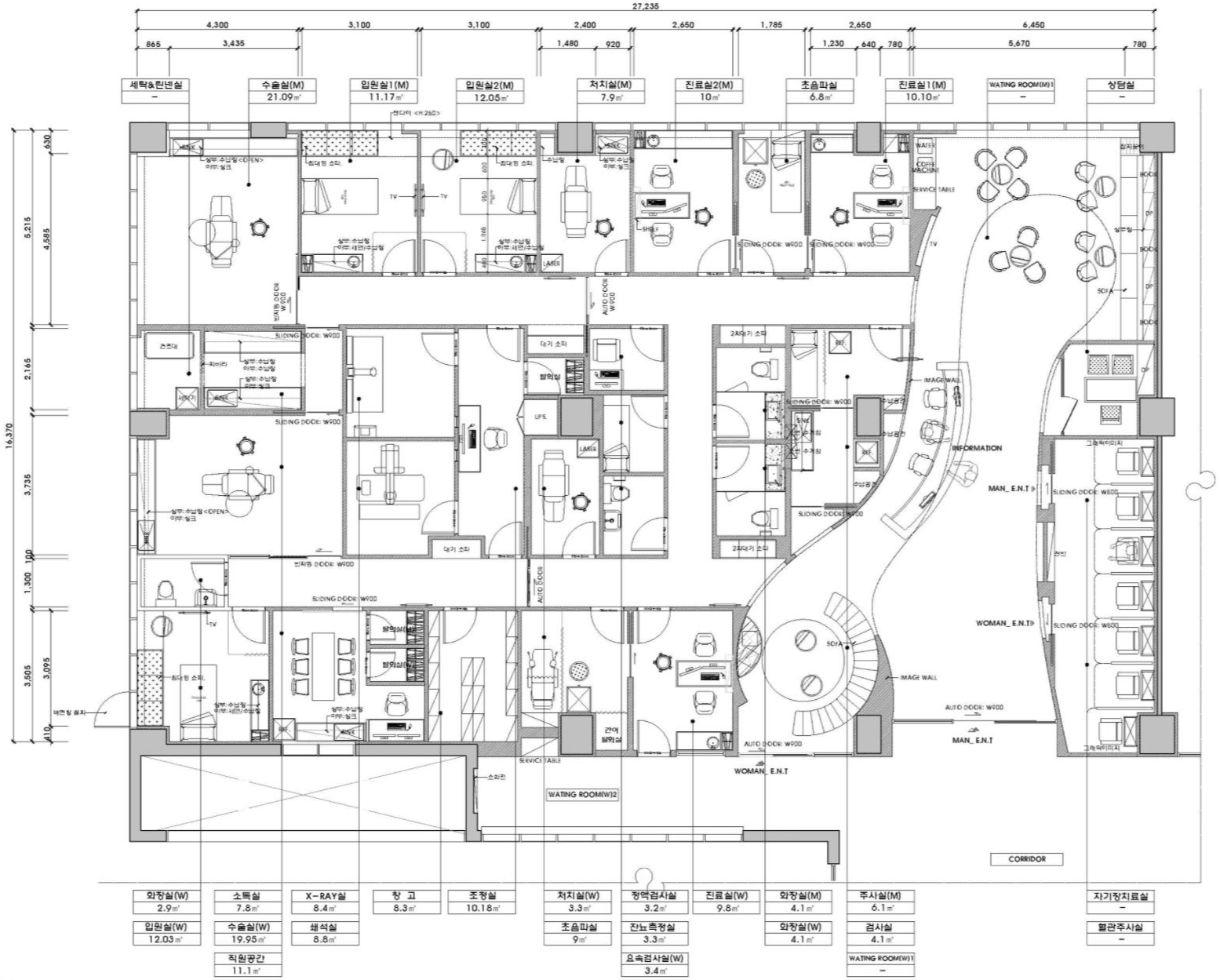
면적 : 136.5평
설계 및 시공 : 노태린앤어소시에이츠
업무범위 : 인테리어 디자인
완공년도 : 2017
이전에 골드만 비뇨의학과 사용자 미팅 및 설계과정을 올려놓았었습니다. 차후 지속적인 사용자 미팅 및 니즈를 파악하여 완공하였습니다. 남/녀 모두 심적부담 없이 편안하게 왔다 갈 수 있는 병원입니다.
보다 인간적인, 진정 사람이 중심이 된 병원 공간 디자인
공간의 미적 가치는 ‘머뭄’입니다. 머뭄의 가치가 가장 먼저 실현되는 것은 ‘동선’입니다. 공간은 사람의 행동이 이루어지는 곳입니다. 골드만 비뇨기과는 병원 공간이라는 특성과 개인의 노출의 최소화를 원하는 환자들의 바람이 반영된 동선이 설계의 시작이었습니다. 사용자의 욕구 실현이 반영된 공간 설계는 치료과목의 특성으로 인한 남녀 환자의 내원과 내부 이동의 자유로움을 보장하기 위한 ‘웨이파인딩’으로 동선을 제공했습니다. 또한 사전 워크숍으로 공간의 사용자들이 참여한 사용자 욕구의 수렴 과정을 진행하였습니다. 사용자 참여는 병원 공간의 완성 주체로 자각하는 효과 및 공간 사용의 효율성까지 확보하게 됐습니다. 수술실과 입원실의 연결과 남녀 입원실 분리 등 신속한 이동과 사생활 보장, 진료진의 동선 분리, 환자의 심리적 안정을 위한 곡선 디자인과 천정의 힐링 이미지 배치 등 사용자의 개별적 나즈를 통합한 공간이 완성됐습니다. 비뇨기과의 치료 절차에 따른 화장실 사용을 고려하여 이미지 컬러테라피의 활용으로 바다와 꽃의 3D 그래픽으로 구현과 음악 청취 등 시청각적 치유 효과로 심리적 안정감을 제공했습니다. 혁신과 상상의 가치는 신뢰와 편리성, 평온함과 치유의 가치를 제공한 공간으로 확장됐습니다.












