군산휴내과
위치 : 전라북도 군산시 월명로 184 현진빌딩 3~4층
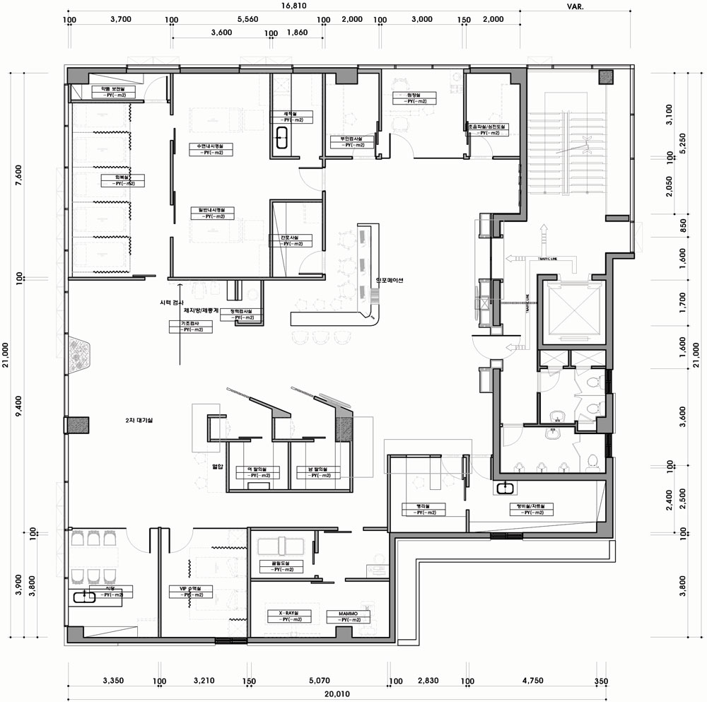
면적 : 170평
설계 및 시공 : 노태린앤어소시에이츠
사진 : 노태린앤어소시에이츠
완공년도 : 2017
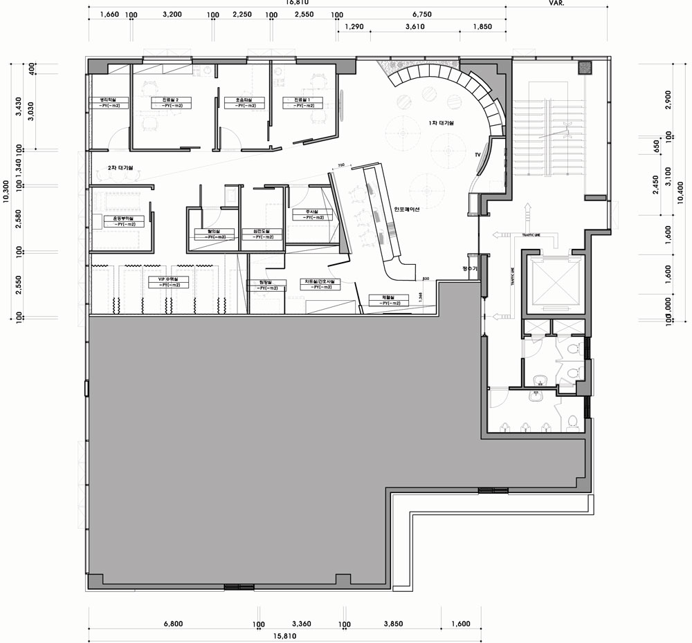
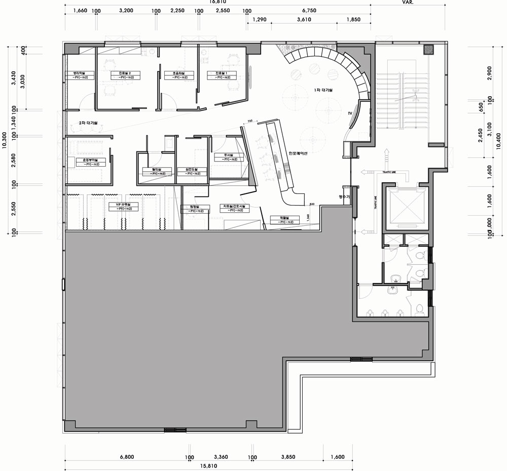
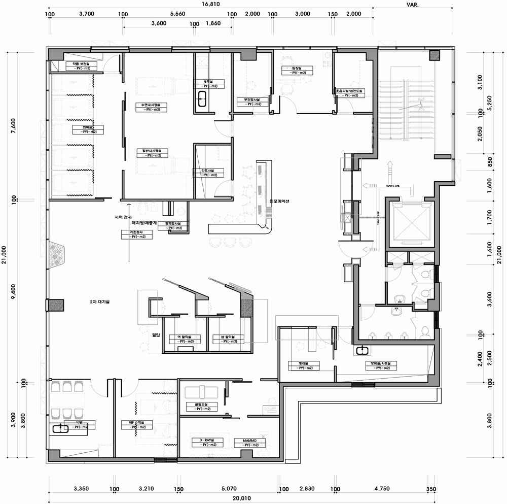
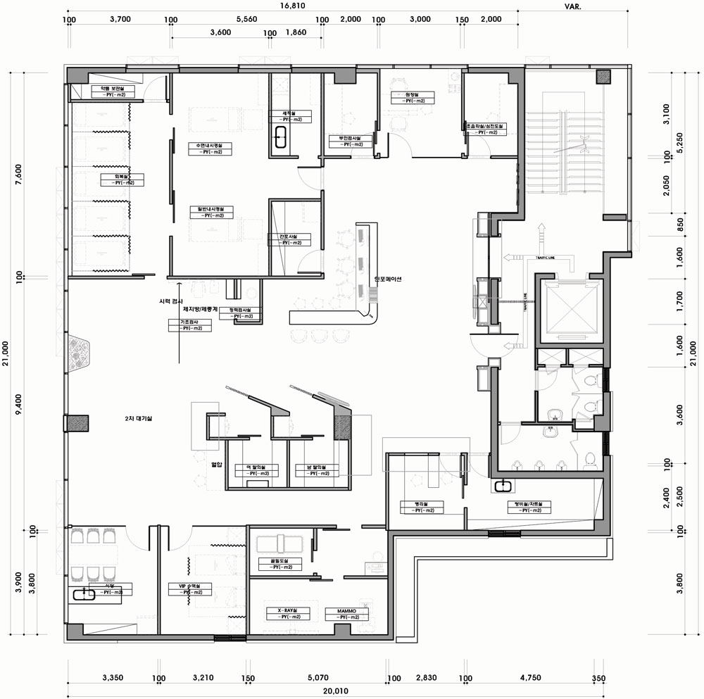
이전에 휴내과 사용자 미팅 및 설계과정을 올려놓았었습니다. 차후 진행된 완공 사진입니다. 보다 따스하고 아늑하며 친절한 공간처럼 보이지 않나요!?
고대의 프라자의 기능을 공간에 담아낸 병원
낮에는 환자들에게 밤에는 지역주민 또는 청소년에게 야학의 공간을 제공한다라는 바람이 반영된 공간이 설계의 시작점이었습니다. 다양한 이야기의 꽃을 피우시느라 진찰실에서의 시간이 길었던 병원은 대기공간이 좁았지만 이 공간에 사방 채광이 들어오게 열려 있게 만들어 오래 기다리는 환자들에게 지루함을 덜어 줍니다. 또한 상주하는 직원들에게도 아침부터 밤까지 자연스러운 일상을 접할 수 있게 해 주어 많은 환자들을 대하면서도 피곤하지 않게 합니다. 이러한 니즈는 사전 워크숍으로 공간의 사용자들이 참여한 사용자 욕구의 수렴 과정을 진행하였기 때문입니다. 사용자 참여로 병원 공간의 완성 주체로 자각하는 효과 및 공간 사용의 효율성까지 확보하게 됐습니다.












