인천 성모내과의원
위치 : 인천광역시 부평구 부평동 543-45 YD 타워 3층
면적 : 160평
설계 및 시공 : 노태린앤어소시에이츠
사진 : 노태린앤어소시에이츠
완공년도 : 2017
환경과 사람에 대한 충분한 이해를 바탕으로 만들어진 공간은 시간이 지나도 늘 생동감 있고 편안하다. 공간은 사람이 머무르는 곳이며 삶의 터전이기에 사람이 그곳에서 경험하는 과정을 담고 있어야 한다. 노태린 앤 어소시에이츠는 공간을 짓기에 앞서 많은 시간과 노력을 들여 사용자에 대해 연구하고 사람이 중심이 되는 공간을 만들기 위해 끊임없이 생각하고 실행한다. -고민주 기자
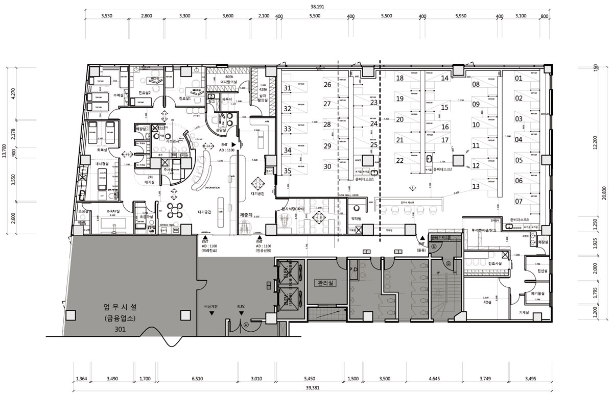
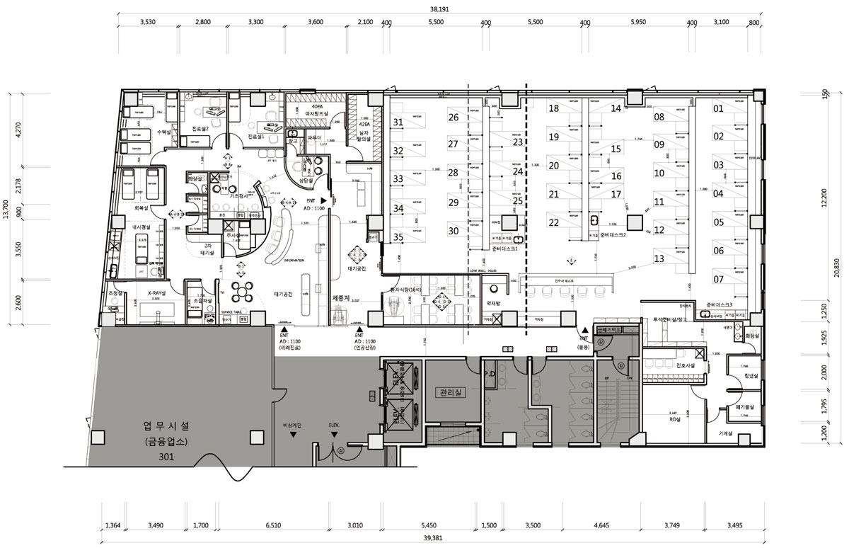
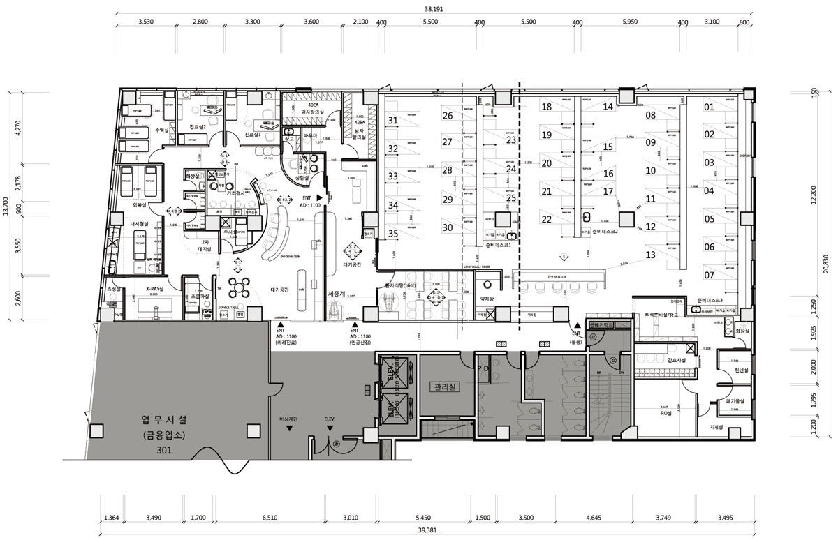
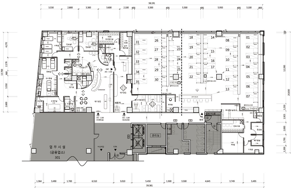
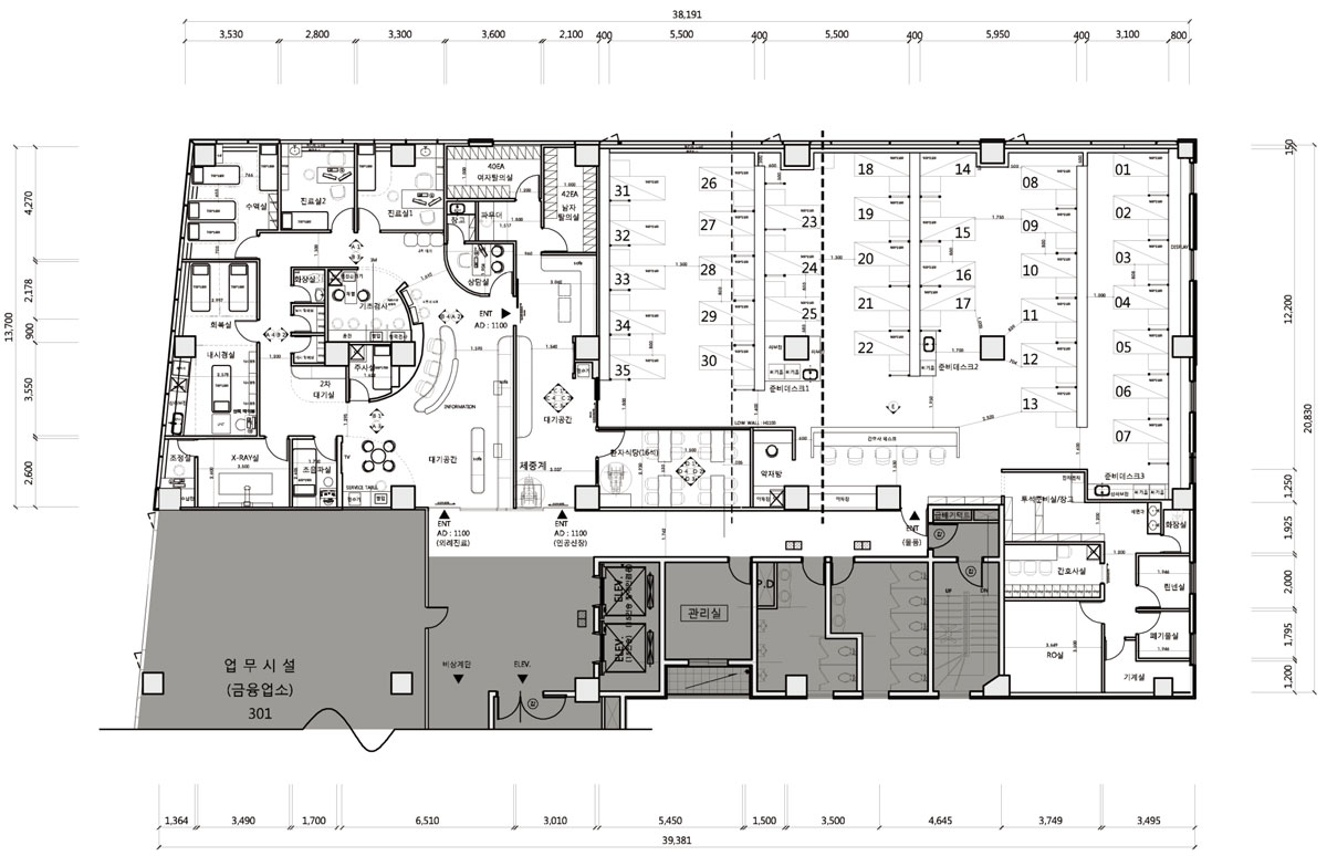
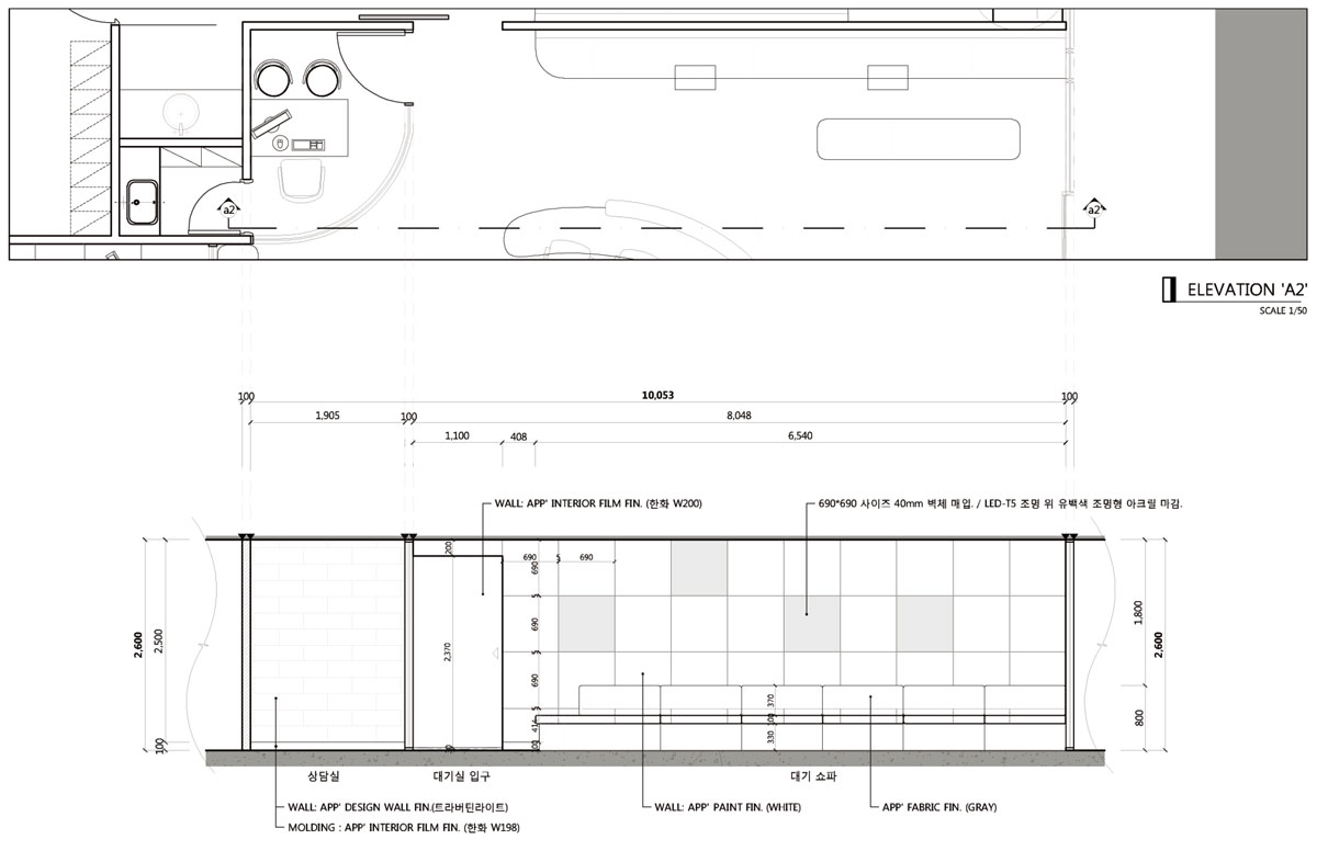
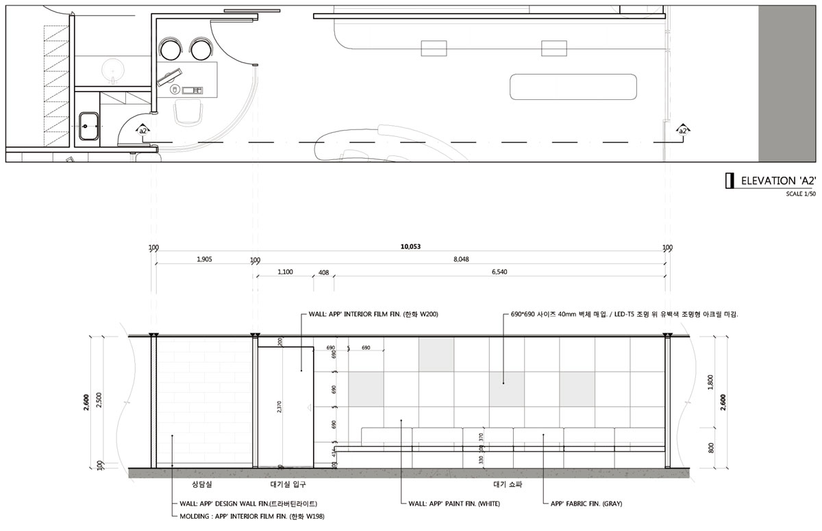
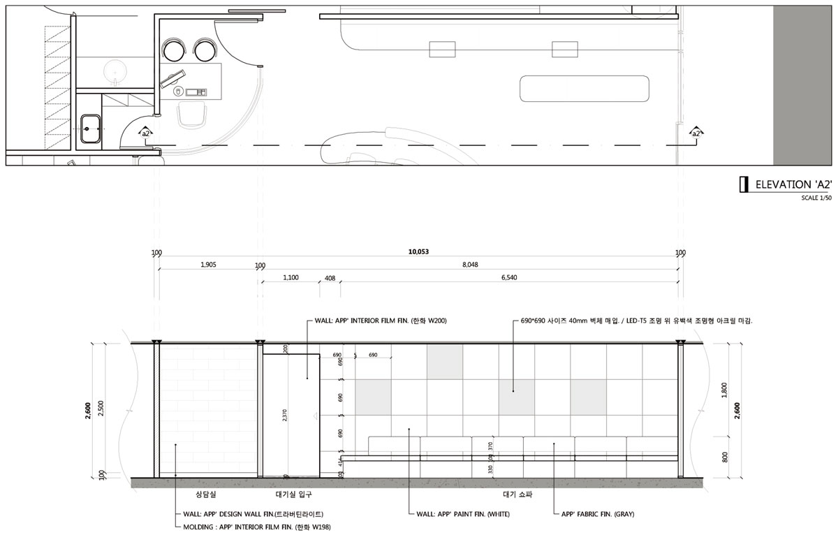
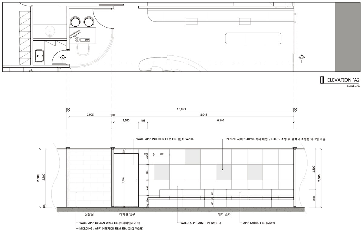
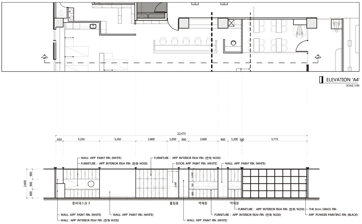
부평구에 위치한 인천성모내과의원은 건강보험심사평가원이 발표한 혈액투석 적정성 평가에서 인천지역 의원급 의료기관 유일하게 1등급으로 평가받았다. 외래 진료와 혈액여과 투석을 할 수 있는 인공신장실이 갖춰진 위 병원은 전체적으로 자연친화적인 소재와 둥근 곡선으로 디자인되어 우아함과 편안한 분위기로 고객을 맞는다. 전체적으로 화이트 톤과 은은한 조명으로 디자인된 공간은 병원에 대한 무거운 이미지를 중화시키며 쾌적한 실내를 보여준다.
천장의 곡선을 따라 설치된 조명과 벽면과 같은 모양의 조명이 공간 곳곳에 생동감이 느껴지는 리듬을 연출한다. 실내에는 리듬을 따라 자연스러운 동선이 생겨난다. 상담실은 통 유리로 구성해 열린 공간으로 상담고객의 긴장감을 완화시킨다. 인공신장실은 초입에는 또 다른 로비를 둬 외래 진료실과 분리했다. 외래 진료실을 거칠 필요 없어 이용객의 편의를 더한다.
혈액투석이 이루어지는 인공신장실은 많은 베드와 함께 혈액투석 여과기가 공간을 채우고 있다. 자칫 차가워 보일 수 있는 공간은 그린 컬러로 포인트를 준 벽면에 맞춰 베드의 담요 역시 모두 동일한 색으로 두어 아기자기한 분위기를 연출했다. 뿐만 아니라 로비 대기실과 같은 밝은 실내 환경으로 혈액투석실에 대한 불안함을 잠재운다. 내부 한편에는 베드와 평행되도록 데스크를 놓아 실내를 한눈에 두루 살필 수 있다. 환자를 재빨리 도울 수 있는 효율적인 의료 환경을 보여준다.
-월간데코저널 2017.10에 실린 기사 발췌-















