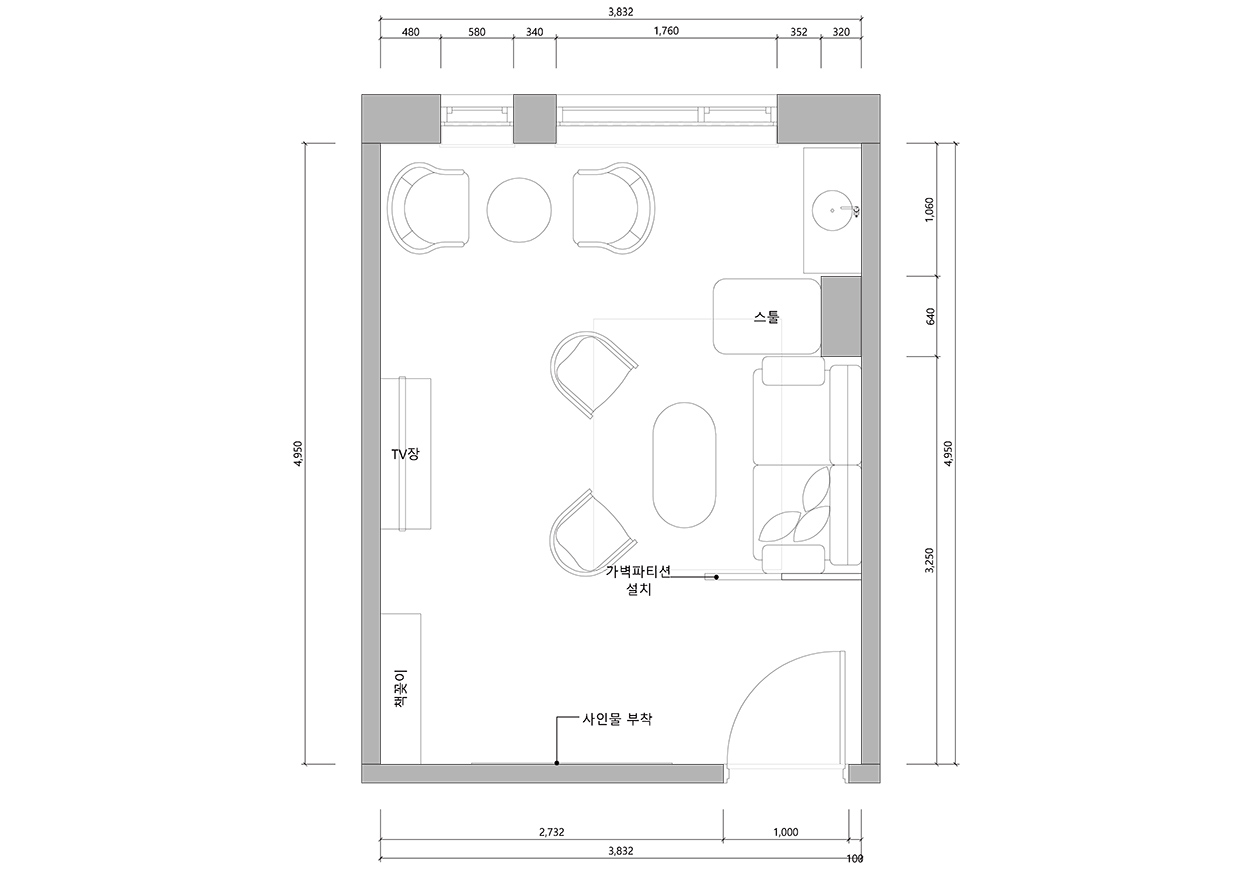
강남 세브란스 병원 의사휴게실
위치 : 서울특별시 강남구 언주로63길
면적 : 19㎡ (5.7평)
설계 및 시공 : 노태린앤어소시에이츠
완공년도 : 2022
기존 일반 사무적인 휴게실의 분위기를 벗어나 의료진의 휴식 배려할 수 있는 공간을 감각적으로 표현했습니다. 공간 전체적인 메인 컬러는 옐로우와 우드를 활용해 따듯하고 안락한 분위기를 연출하며, 아이보리, 브라운 컬러의 패브릭 가구를 배치해 편안한 분위기를 더욱 강조했습니다. 업무환경을 잠시나마 벗어나 진정으로 휴식할 수 있는 공간을 제안합니다.







