민트병원 인테리어 디자인 (K-Design award)
위치 : 서울특별시 송파구 문정동 정의로 8길 7 640-3) 한스빌딩 1,2,3층
면적 : 600평
설계 및 시공 : 노태린앤어소시에이츠
업무범위 : 인테리어 디자인
완공년도 : 2017
행복하고 즐거움을 아는 사람들이 함께 어울려 만든 공간에서는 오래 살아도 늘 생동감 있고 편안하다. 공간은 사람이 머무는 곳이며 삶의 터전이기에 공간은 사람이 그곳에서 경험하는 과정을 담고 있어야 한다. 민트 병원을 디자인한 KAIlab은 공간을 짓기에 앞서 많은 시간과 노력을 머물 사람에 대해 연구하고 그들의 마음을 읽으려 노력한다. 진정 사람이 중심이 되는 공간 디자인을 꿈꾸며 공간을 위한 공간이 아니라 인간을 위한 공간을 만들기 위해 끊임없이 생각하고 실행한다.
민트병원은 환자에게 고통과 부담을 주지 않는 병원, 환자의 몸과 마음의 고통을 없애고 기쁨을 주는 병원이. 민트 병원의 민트(MINT)는 Minimally Invasive Nonsurgical Treatment의 약자다. 최소의 침습으로 수술 없이 치료한다는 의미로 의학적 용어로는 인터벤션이라고 한다. 인터벤션 치료는 일반 외과적 수술보다 환자에게 고통과 부담을 주지 않고 입원이 없거나 짧아 경제적으로도 유리한 치료법이다. 민트 병원은 국내 최초의 인터벤션 상의학 전문병원으로서 첨단 치료를 소개하고 의료 선진화에 앞장서고자 노력하고 있다.
이런 노력의 일환으로 민트병원이 지난 2월 6일 서울 문정동으로 확장 이전했다. 600평 규모로 5개 특화센터(자궁근종통합센터, 정맥류센터, 부인과센터, 혈관인 터벤션센터, 내과/건강검진센터)를 운하는 새로운 공간은 고객에게 보다 좋은 서비스와 공간을 제공하기 위한 노력의 결과다. 특히 문정동에 새롭게 문을 연 민트 병원은 '병원 고치는 여자'로 유명한 노태린 디자이너의 노태린 앤 어소시에이츠가 디자인을 맡아 스토리가 있는 공간, 건강하고 따뜻한 소통이 있는 공간으로 완성했다.
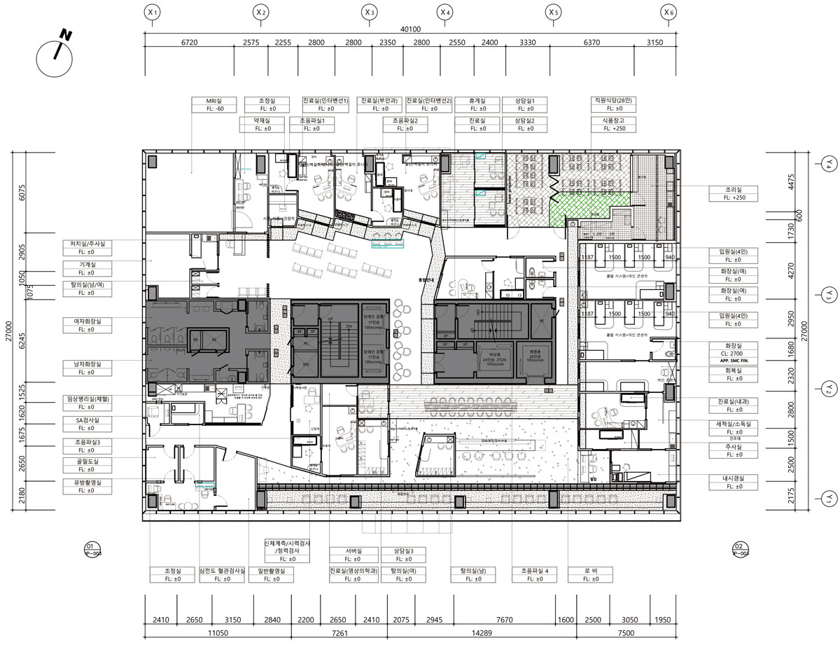
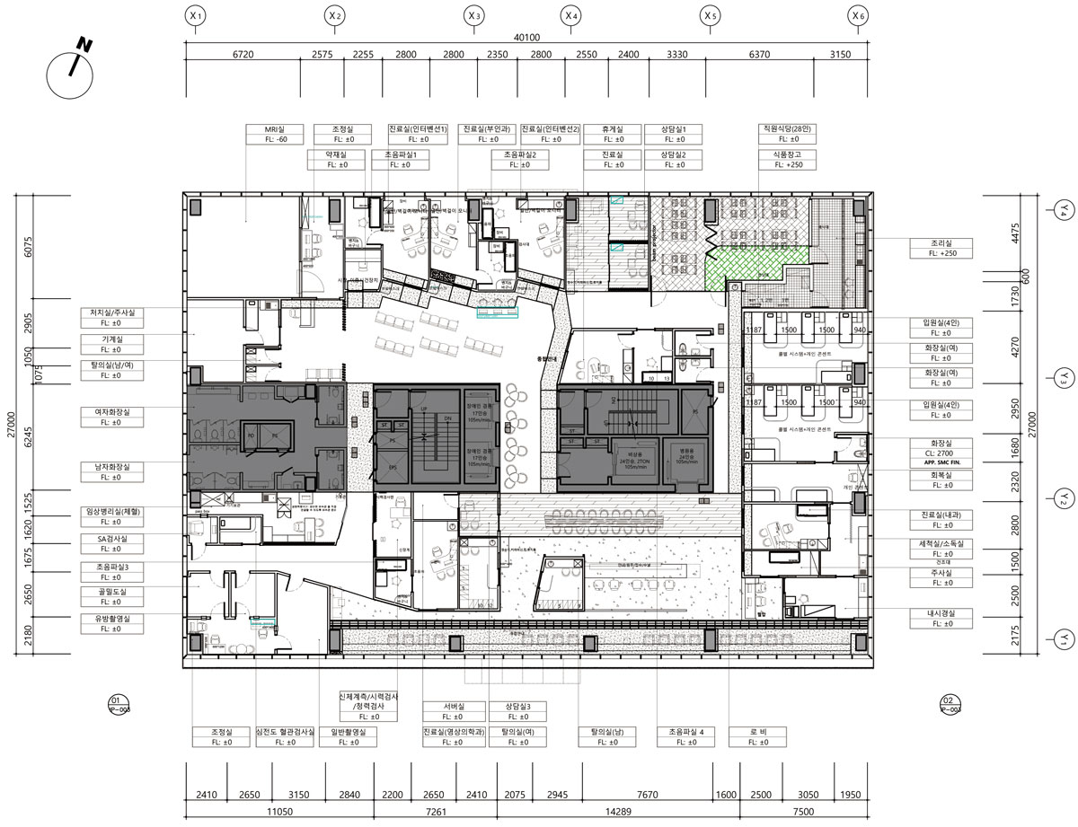
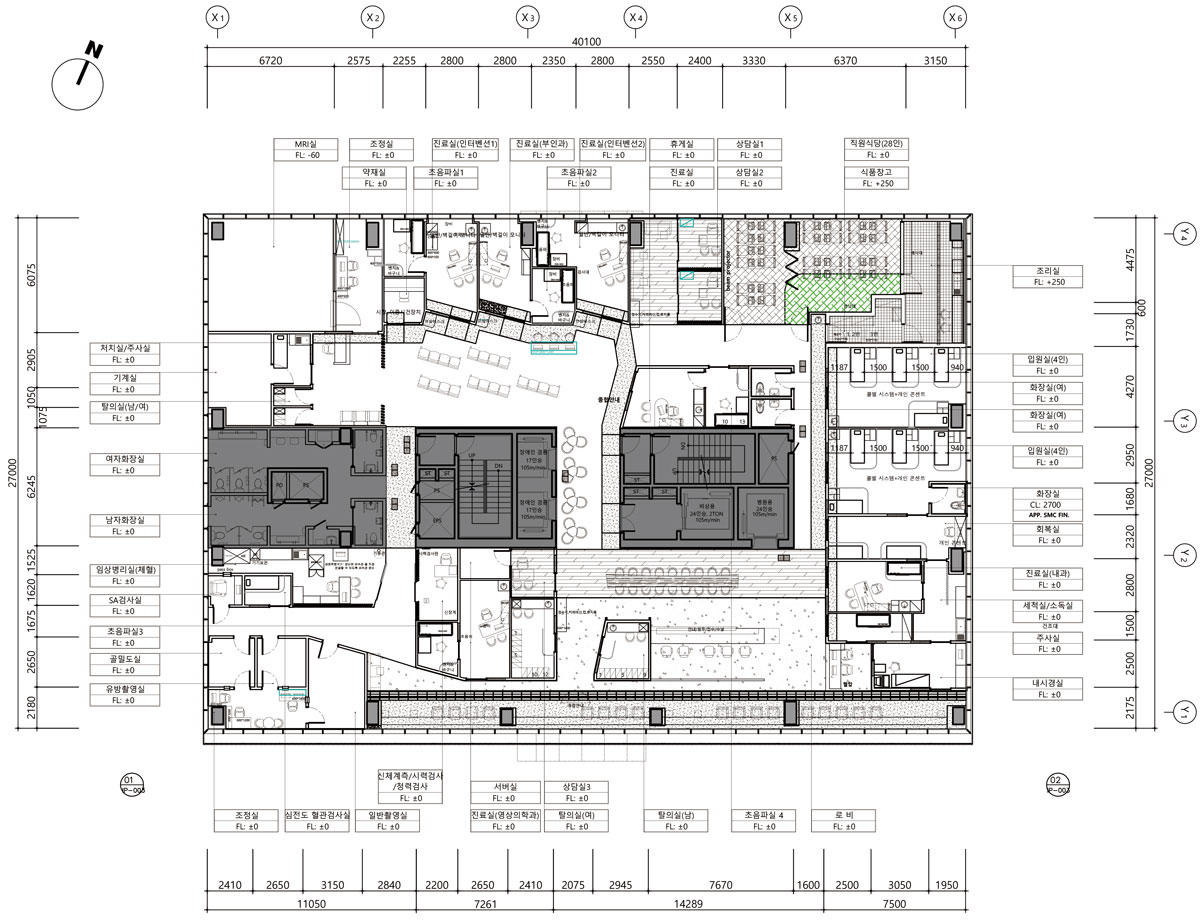
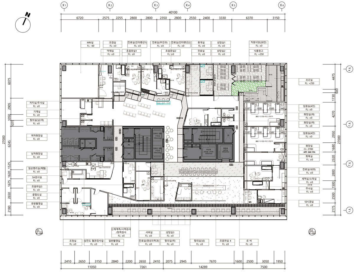
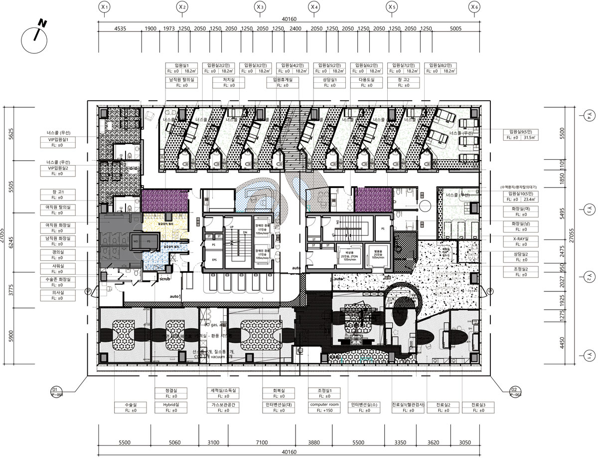
평소 공감의 디자인을 추구하는 노태린 디자이너는 환자를 위하는 민트병원에 걸맞은 감성적이고 쾌적한 공간을 만들어냈다. 병원은 건물의 2층과 3층을 사용하는데 2층에는 MRI, 인터벤션 대기공간과 건강검진 존, 진료 대기 공간 등이 있고 3층에는 입원실과 시술실, 진료 대기 공간 등이 있다. 전체 공간의 특징은 병원이 병원 같지 않다는 것이다. 병원하면 생각나는 차갑고 기계적인, 창백한 이미지의 공간이 아니라 따뜻하고 자연이 있는, 감성적인 공간이라는 것이다. 특히 2층 창가에 만들어진 휴식 공간은 바닥의 푹신한 카펫타일, 부드럽게 흐르는 테이블과 벤치, 조화를 이용한 쾌적한 공간으로 환자와 이용자 모두에게 사랑받는 공간이다.
2층에선 창가의 휴식 공간 이외에도 노태린 앤 어소시에이츠 특유의 감성적이며 기능적인 디자인을 엿볼 수 있다. 공간별로 바닥의 컬러를 다르게 적용하고 개방성을 느낄 수 있도록 계획해 환자가 편안한 마음으로 공간을 찾기 쉽게 했다. 또 석고보드와 LED를 활용해 만든 천장의 장식은 마치 부드러운 구름을 보는 듯 기분까지 편안하게 만들어 준다. 전체적으로 원목의 자연스러운 색상을 살린 마감재를 적극적으로 활용해 대기 시간에도 지루 하거나 불편한 마음이 들지 않도록 배려했다. 벽돌과 콘크리트, 패턴 등 벽면에 사용된 다채로운 마감과 컬러, 독특한 조명이 차분한 공간에 유쾌하고 즐거운 분위기와 세련된 감성을 더한다. 특별히 디스플레이를 활용해 다양한 형상과 이미지를 전하는 대형 디스플레이 월은 밝고 활동적인 느낌을 주며 공간을 환하게 밝힌다.
3층에는 입원실과 시술실, 진료 대기공간 등이 있다. 2층보다는 다소 차분하고 따뜻한 분위기로 채워졌다. 민트와 내츄럴 우드톤을 활용한 벽면, 환자의 동선을 고려해 직사각형이 아닌 사다리꼴로 구획된 병실 등 기능과 감성의 조화가 특히 눈에 띈다. 쉽게 접근할 수 있는 휴게 공간과 상담실, 쉽게 눈에 띄는 호수 번호와 문의 개폐 여부를 알 수 있는 조명 등 사소한 듯 사용자를 배려한 디테일이 가득하다. 책상에 앉아서는 절대 나올 수 없는 이런 디테일은 일상의 불편함에 대한 치열한 고민의 결과다. 환자와 병원 직원처럼 직접 사용하는 이들만이 알 수 있는 혹은 미처 불편하다고 생각하지도 못 했던 문제를 해결하는 디자인이야말로 노태린 대표와 노태린 앤 어소시에이츠의 능력이다. 새롭게 문을 연 민트 병원은 상호작용과 소통을 중요하게 여기는 디자이너의 철학과 환자를 위하는 병원의 철학이 만들어낸 성공적인 시너지의 결과다.





















